07

Réhabilitation d’une école élémentaire École des Abeilles

Voir les études
  • 03 - ABEILLES_VIEW1_240731C_1
    Intervenir sur un bâti existant pour l’adapter à de nouveaux usages, au changement climatique, réduire les dépenses énergétiques et améliorer confort et santé.
    Conserver et entretenir un patrimoine, réhabiliter plutôt que reconstruire.
  • 01 - ABEILLES_VIEW3_240729B_1
    Le projet proposé prévoit une réhabilitation lourde avec notamment dans la partie du bâtiment d’enseignement en R+5 une quasi reprise complète des planchers intermédiaires.
    L’habillage en façade de l’escalier et de la terrasse extérieure seront réalisés en panneaux de vêture céramique composés :
    • D’une ossature métallique support tous les 60cm,
    • D’un tissu métallique en acier inoxydable AISI 316 dans lequel sont insérées des briques de terre cuite.
  • 02 - ABEILLES_VIEW2_Rev3_240730
    Les aménagements paysagers de l’école élémentaire Abeilles viseront à assurer la désimperméabilisation des espaces extérieurs et le rafraîchissement de son atmosphère, ainsi qu’à contribuer à l’accroissement de la biodiversité à l’échelle du quartier, grâce à l’introduction d’une forte présence végétale dans le périmètre de l’opération.
  • 04-Plan de situation
  • 05 - PDM
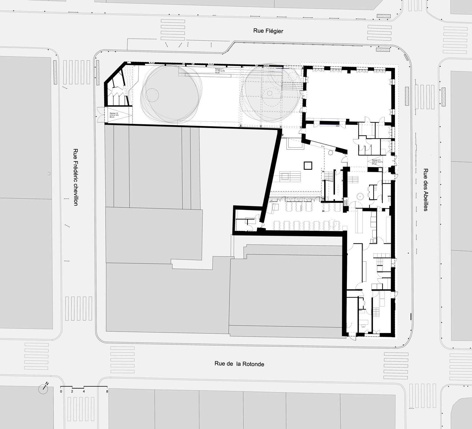
  • R+1
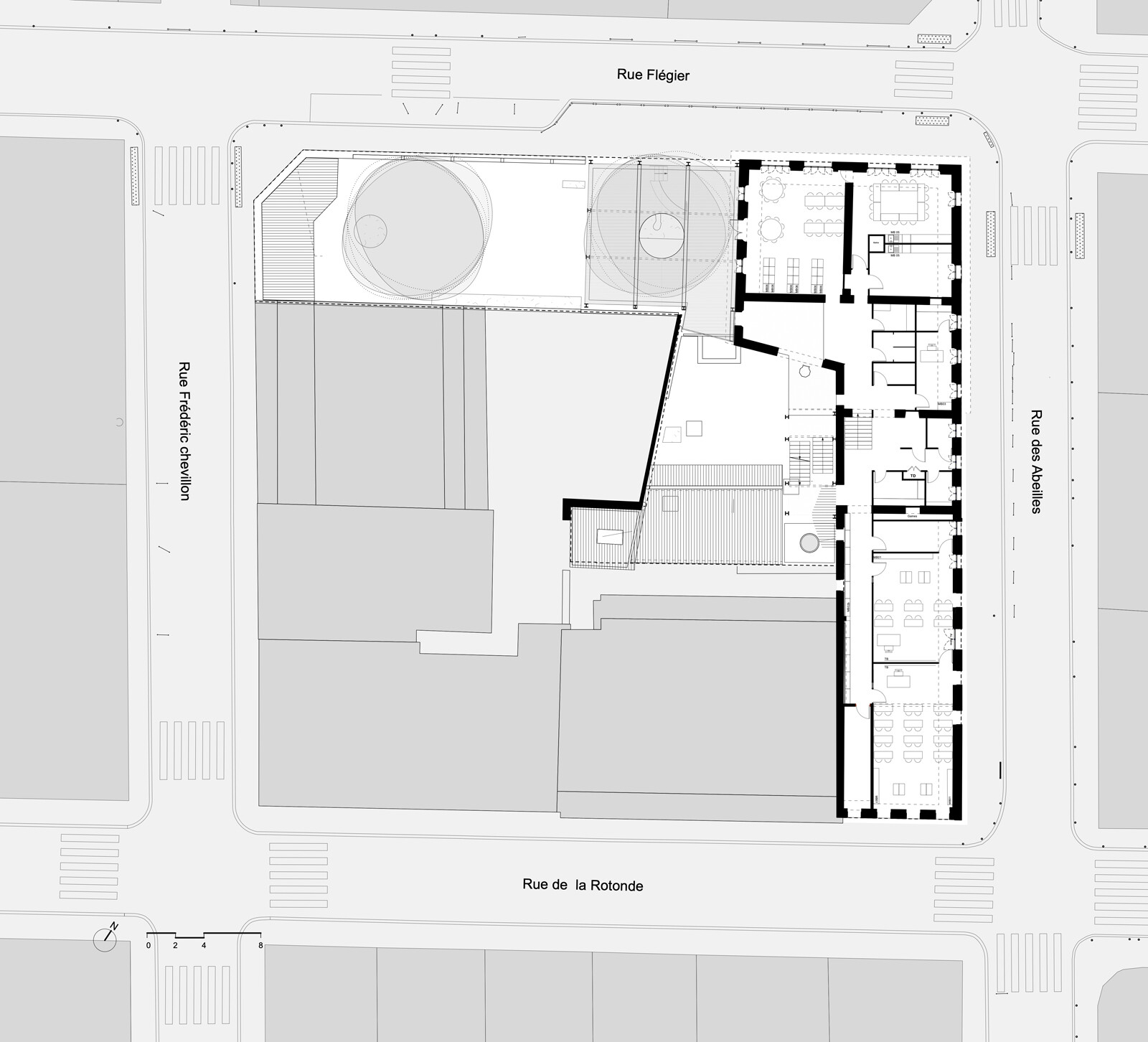
  • RDC
  • 08 - FACADE NORD
  • 09 - COUPE 1
  • 10 - COUPE 2
  • 11 - COUPE DÉTAIL

Réhabilitation d’une école élémentaire École des Abeilles

Voir les études
  • Maître d’ouvrage Société publiques des écoles marseillaises
  • Maître d’œuvre Architectes : Lacube Architectes et Structure Miscible
    Bureau d'études tous corps d'état : S.EGE
    Acousticien : A2MS
    BE Amiante : ACCEO
    Paysagiste : Richier Paysage
    CSSI : NAMIXIS & SSICoor
  • Calendrier Études en cours
  • Surface 1500 m²
  • Coût 3.9 M€ HT
  • Perspectives STEP01 Stéphane Gruneisen