01

Groupe Scolaire et Gymnase de la Capelette, Marseille

Voir les études
  • CAP FAC COUR
    Le groupe scolaire s’inscrit dans la dynamique urbaine de la Zac de la Capelette : 
    Créer une nouvelle centralité autour du parc du 26ème centenaire, 
    Développer un modèle méditerranéen de ville durable.
  • CAP RUE GD
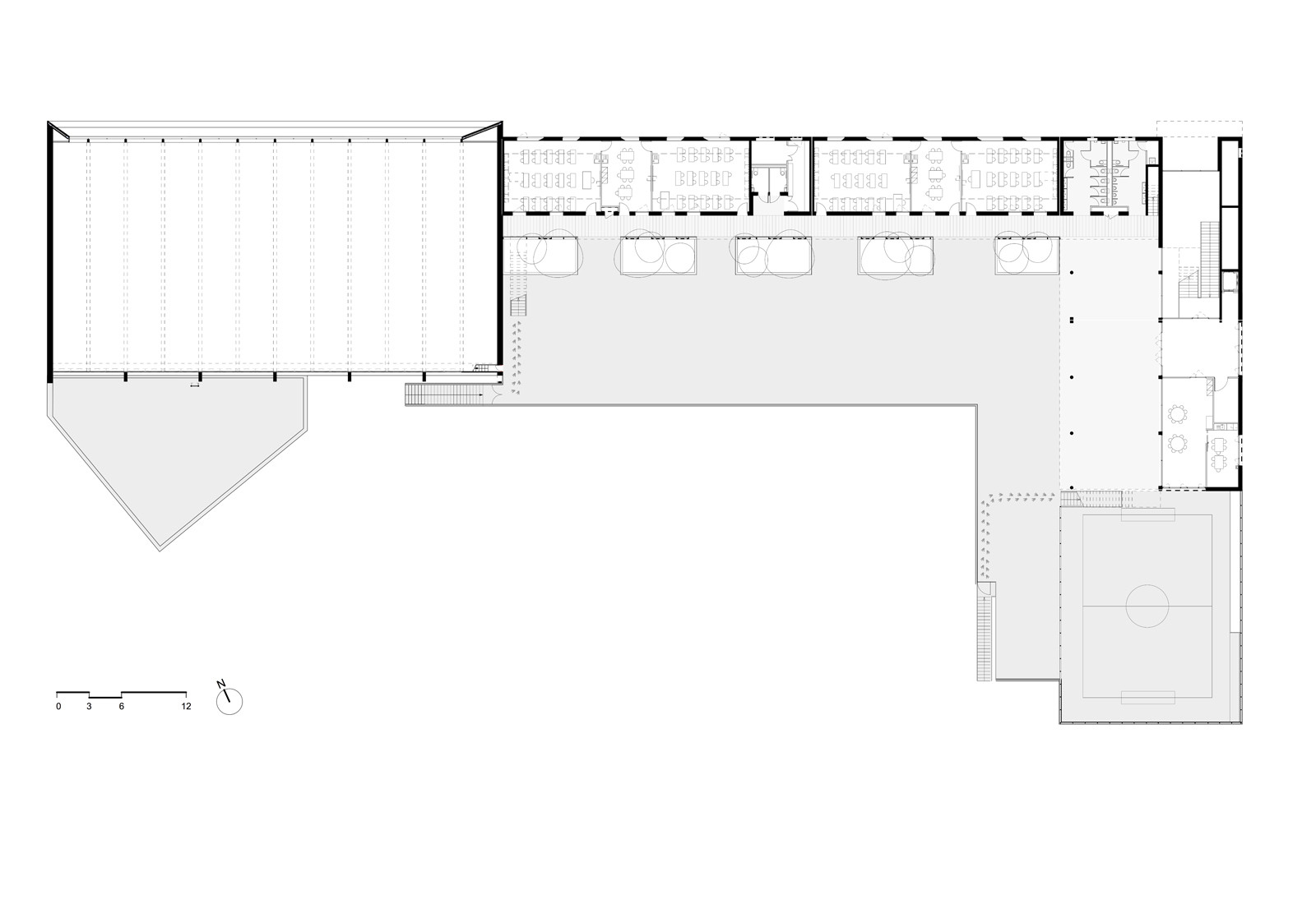
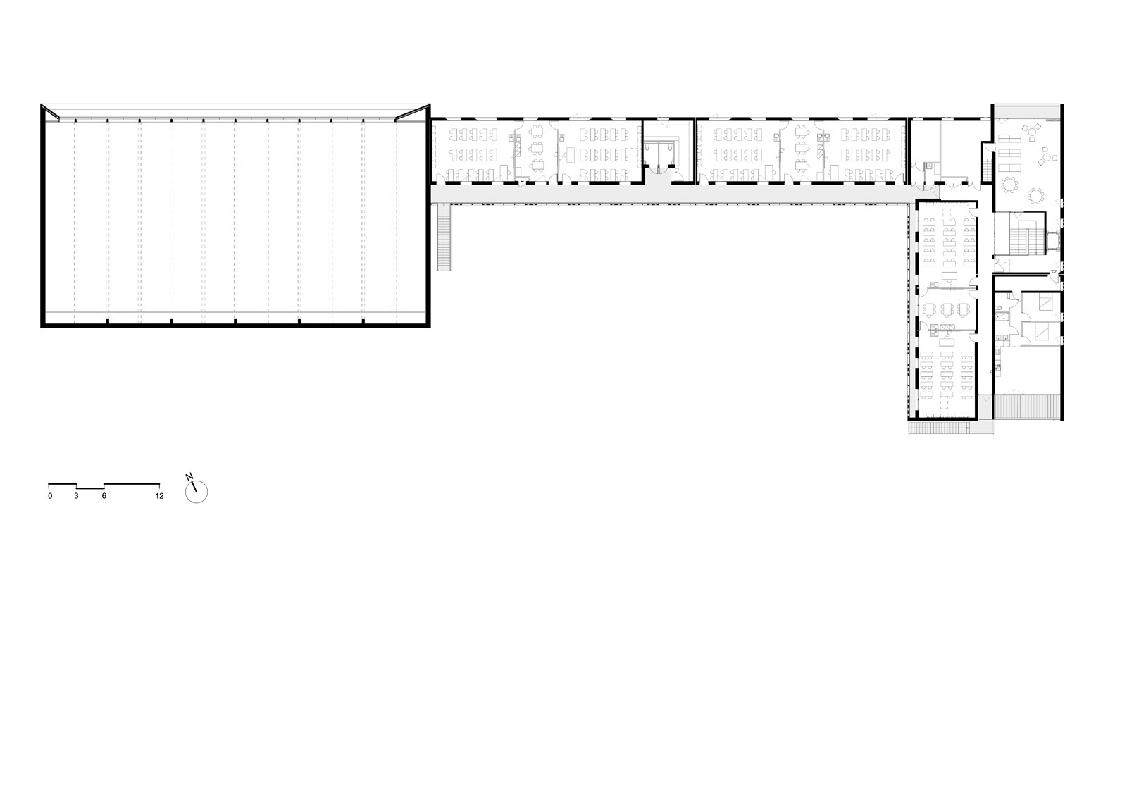
    Une simple équerre adossée au Mistral, utilise la largeur autorisée en rez-de-chaussée, se creuse au sud côté cour pour protéger les espaces pédagogiques des principales nuisances : vents dominants, circulation automobile et pollution.

    L’Histoire de Marseille, de la Provence sont au centre du projet. 
    La Terre y est inscrite comme un fil directeur, du développement des tuileries au milieu du XIXème, au regain d’intérêt actuel pour les matériaux à faible impact environnemental.
    Le module de brique en terre cuite introduit une vibration particulière, témoigne d’un savoir-faire, de patience et précision.


    Au Nord rue Édouard Alexander, les embrasures des baies s’évasent pour accueillir largement une lumière diffuse, douce et réfléchie par les parois en briques de terre blanche. Les Châssis fixes sont positionnés au nu extérieur. Protéger les espaces pédagogiques des émissions de CO2, sans risque de surchauffe.

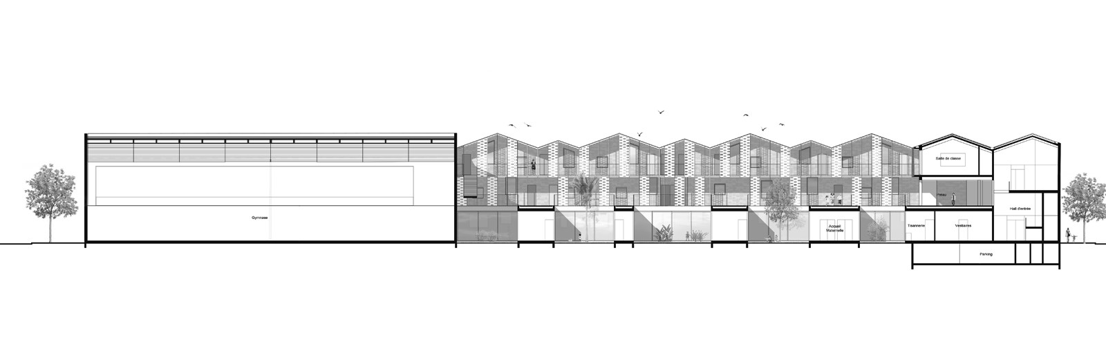
    La ligne brisée de la toiture évoque l’histoire de la Capelette, la silhouette caractéristique des fabriques encore présentes dans le quartier. La libre composition des ouvertures invite l’enfance, l’imaginaire et la découverte.
  • CAP COURSIVES EXT GD
    Au sud en fond de coursives distribuant les espaces pédagogiques, les Châssis ouvrants creusés dans la maçonnerie assurent une ventilation naturelle des locaux. 
    Des panneaux à claire voie en claustras de terre cuite, protègent du soleil direct les fenêtres des salles de classes, participent également au caractère des coursives. 

    Depuis le Hall de la Maternelle, une rue intérieure rythmée par une série de patios, offre aux salles de classe sur la rue un prolongement extérieur privatif plein sud.
    Les cours, dans une continuité de matériau associent les couleurs de la terre à l’ombre portée du végétal, pour définir une même ambiance, un art de vivre en Provence.  

    Une construction à faible impact environnemental respectant avant tout, les principes de conception bio climatiques méditerranéen. Atteindre un objectif Bas carbone E3C1, Mais aussi réaliser un lieu de rencontre et de Vie inscrit dans un Territoire.
  • CAP HALL ESCALIER GD
  • CAP DÉTAILS FACADE
  • CAP SELF GD
  • CAP DORTOIR
  • CAP GYM INT
  • CAP COUR GD
  • 1904 - 00-PLAN SITUATION-CAPELETTE
  • 1904 - 01-PDM
  • 1904 - 02-RDC
  • 1904 - 03-R+1
  • 1904 - 04-R+2
  • 1904 - 05-DETAIL COURSIVE
  • 1904 - 06-facade nord bis
  • 1904 - 07-coupeAA bis
  • 1904 - 08-coupeCC bis

Groupe Scolaire et Gymnase de la Capelette, Marseille

Voir les études
  • Programme 17 classes primaires, restauration, bibliothèque, salle polyvalente et gymnase
  • Maître d’ouvrage SOLEAM
  • Maître d’œuvre Architectes : Lacube architectes / Bonte&Migozzi architectes
    Équipe projet : Lucie Marty et Ophély Revial architectes
    Bureau d’études tous corps d’état : EGE
    Acousticien : IGETEC
    Coordonnateur SSI : 2LS
  • Calendrier Consultation : 2019
    Démarrage Travaux : 2023
    Livraison : 2024
  • Surface 4226 m²
  • Coût 10 M€ HT
  • Crédits photos Florence Vesval