10

Commissariat de police, Hyères-les-Palmiers

Voir les études
  • 11
    Le nouveau commissariat d'Hyères est implanté en périphérie du centre-ville, dans une zone en cours d'urbanisation. 
    L'organisation en plan de masse et le fonctionnement intérieur sont conçus dans une même logique rationnelle. Face à cette exigence le projet propose l’inscription d’une douce modénature.
  • 1
  • 2
    Le bâtiment épouse les limites du terrain, face au nouveau rond-point il inscrit une équerre qui protège la cour de service, les aires de stationnement opérationnel sous ombrière.
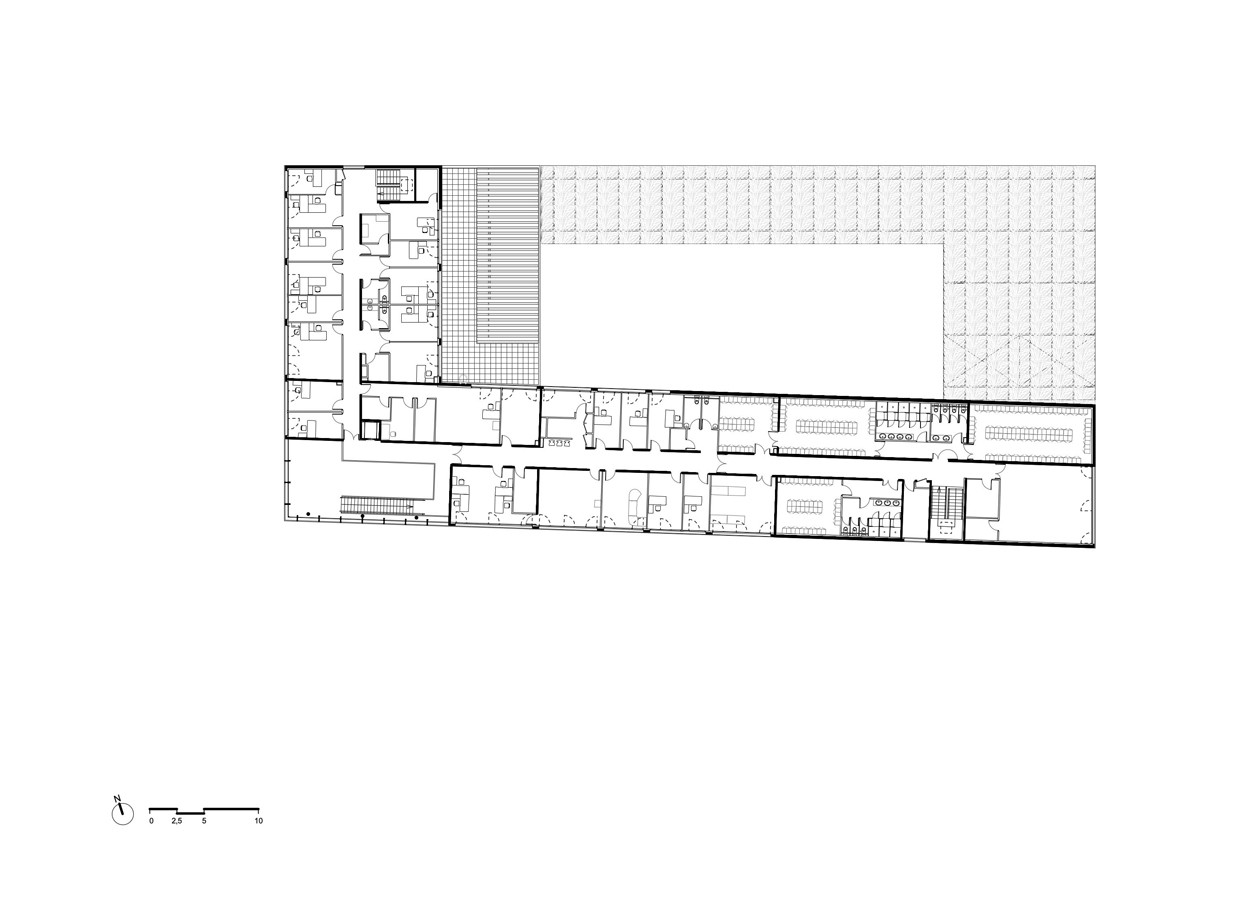
    Au rez-de-chaussée, le bureau du chef de poste est implanté en position centrale. Face au grand hall, il permet une bonne visibilité sur le public à accueillir, et un contrôle de la cour, la zone de dépôt. 

    Un motif de palmes entrecroisées, en référence aux frises des bâtiments administratifs de la ville d’Hyères au XIXème siècle. Il se déploie en empreintes matricés dans les parties pleines réalisées en béton et par découpe laser pour les grilles en tôles d’aluminium placées devant les surfaces vitrées. Elles assurent à la fois le rôle de brise-soleil, de brise-vue et d’élément anti intrusion.
  • 3
    Au-delà de l'évocation de la nature, il porte l'idée d'un bâtiment simple et bienveillant. Une institution au service des citoyens qui accueille et protège. Visible depuis le rond-point, le commissariat est d’abord identifiable par la transparence du volume du hall. La vision s’inverse de nuit, l’éclairage intérieur apparaît filtré, le commissariat reste visible et facilement repérable comme une « balise » dans le paysage.
  • 4
    Un dispositif de puits provençal, spécifique aux régions méditerranéennes est mis en oeuvre. Associé à la forte inertie thermique du béton, il permet d’abaisser la température de l’air intérieur de 3 à 5°C.
  • 6
  • 7
  • 9
  • 9 (2)
  • 12
  • 13 - Copie
  • 14 - Copie
  • 15

Commissariat de police, Hyères-les-Palmiers

Voir les études
  • Programme Construction d'un commissariat de police
  • Maître d’ouvrage Ministère de l'Intérieur
    Direction d'opération 
    SGAP Marseille
  • Maître d’œuvre Architectes
    François Lacube, ILR architecture, Christophe Caire architecte
    Équipe projet : Sidonie Daher Architecte 
    Bureau d'études tous corps d'état : AD2i
    Bureau d'études HQE : Ea image

    Entreprise conception réalisation 
    Eifface Var Construction / SENEC 

    Principaux matériaux et équipements 
    Béton brut matricé, verre, grille aluminium thermo laquée
  • Calendrier Consultation
    2007
    Démarrage travaux 
    2008
    Livraison 
    2010
  • Surface 8 750 m²
  • Coût 13,6 M€ HT
  • Crédits photos © Jean-Michel Landecy