12

Internat du lycée Thiers, Marseille

Voir les études
  • 1
    Les enjeux de cette opération sont multiples : réaliser un internat pour une des écoles les plus prestigieuses de la région, initier le lieu d'une urbanité nouvelle pour le centre-ville de Marseille.
  • 2
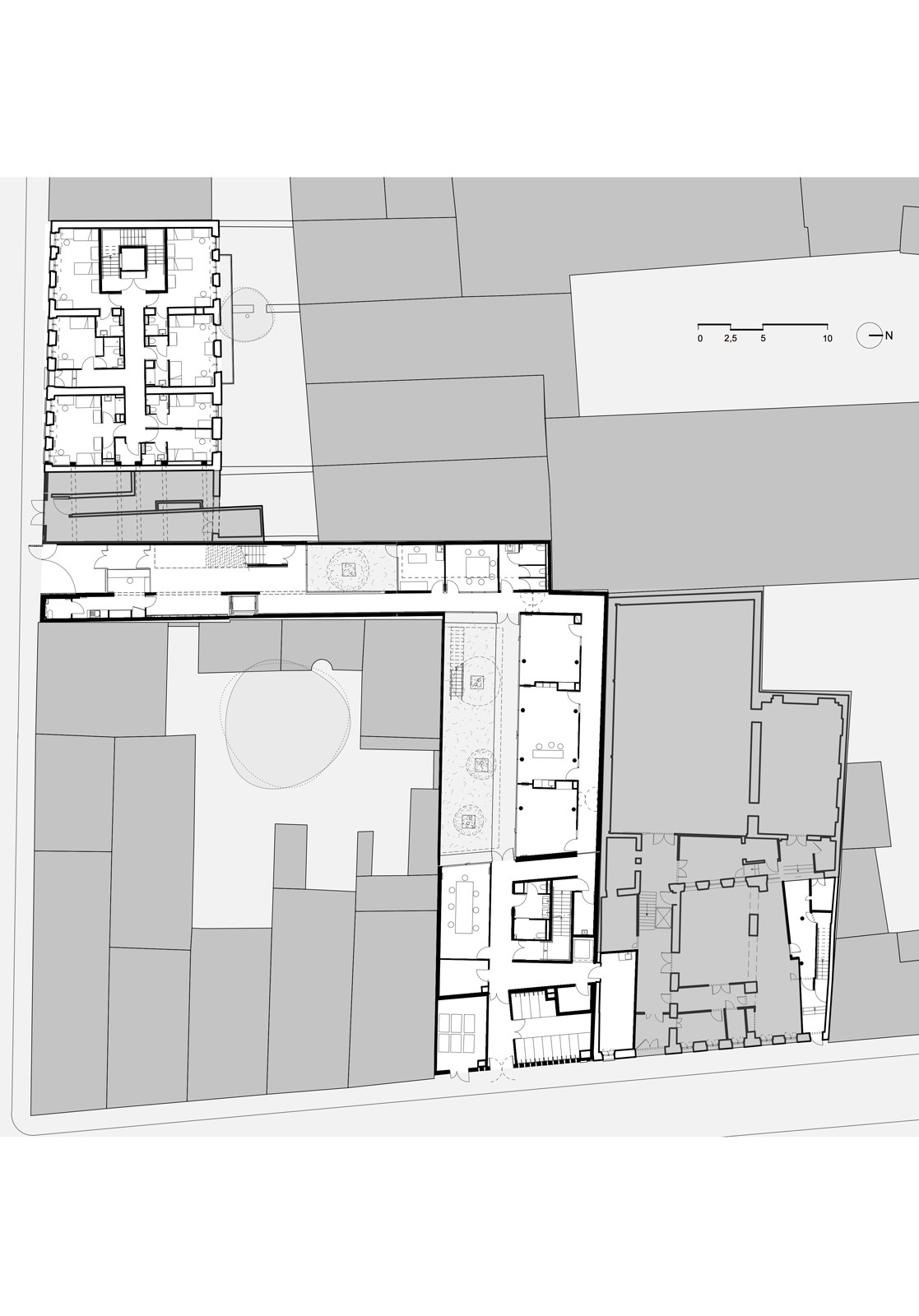
    Situé dans le premier arrondissement de Marseille, c'est dans un quartier adossé à la Canebière que l'on trouve l'entrée principale de l'internat du 
    lycée Thiers. Son terrain d'assiette est issu de l'assemblage de plusieurs entités foncières recomposées. Friches de l'ancien cinéma
    Capitole, immeubles de type « trois fenêtres », et une "dent creuse" sur l'alignement urbain.
  • 3
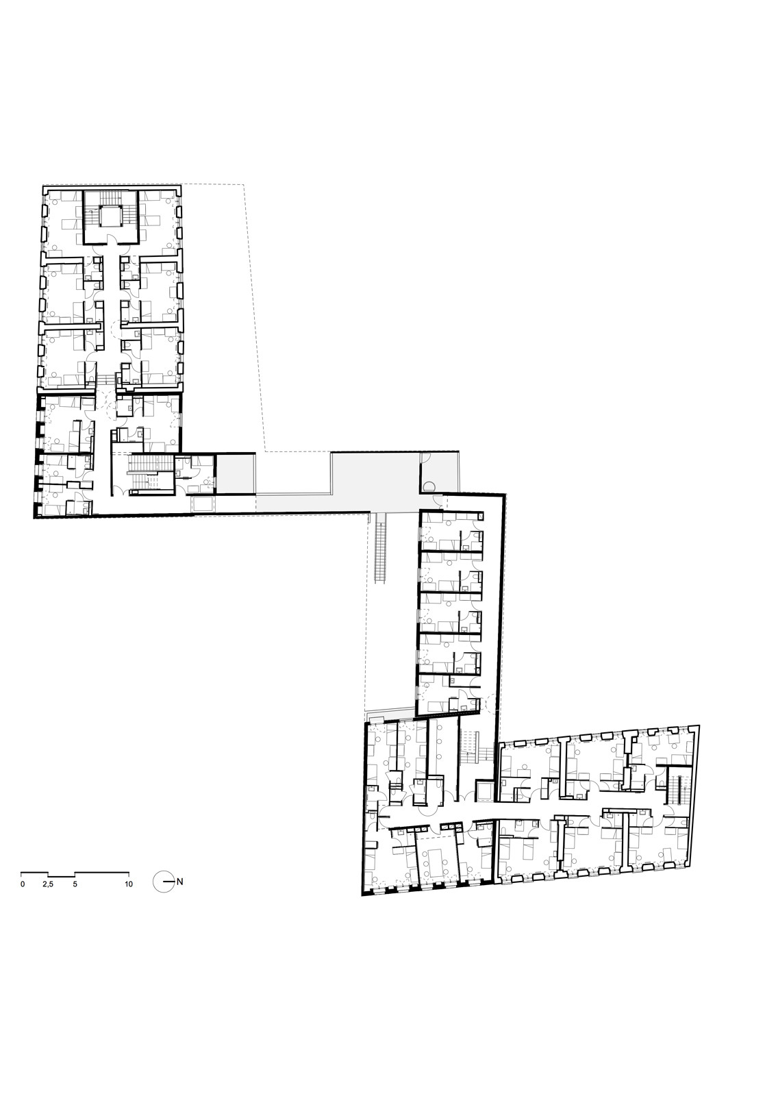
    Les volumes existants ont été démolis restituant un espace libre en cœur d'îlot. Ils permettent d'accueillir la majeure partie du programme d'hébergement. Les deux volumes principaux, six niveaux édifiés sur une profondeur de 17 mètres, ont été implantés en prolongement des alignements urbains sur les rues Sénac et Mazagran. Entre ces entités, un ensemble plus bas en toiture terrasse forme un lien et distribue les fonctions annexes du programme.
  • 5
    Le projet s'inscrit dans la logique urbaine de la zone de protection du patrimoine architectural et paysager. Les façades des bâtiments créés  sont revêtues d'un parement semi-massif scellé en pierre calcaire du portugal. 

    L’attention aux détails, la section des profils, la finesse des gardes corps, et la continuité des surfaces, constituent une composante essentielle du caractère de l’architecture.

    En cœur d’îlot, le parement en pierre laisse place à la seule expressivité d’un béton clair, naturel. Étirées du sol au plafond, s’inspirant de leur environnement, les baies offrent un éclairement généreux et une ouverture totale, permettant un accès de plain-pied sur l’extérieur.
  • 6
  • 7
  • 8
  • 9
  • 10 (1)
  • 10 (2)
  • 10
  • 11-PDM
  • 12-PLAN RDC
  • 13-PLAN R+1
  • 08-DETAIL
  • 09-DETAIL
  • 12 - Copie

Internat du lycée Thiers, Marseille

Voir les études
  • Programme Construction d'un internat de 189 lits
  • Maître d’ouvrage Région SUD
    Direction d'opération
    AREA
  • Maître d’œuvre Architectes
    François Lacube, ILR Architecture
    Équipe projet
    Sophie Daher Lacube Architecte, Bettina Beneventi Architecte
    Bureau d’études tous corps d’état
    Sege                                                                
    Acousticien
    A2MS

    Entreprises
    Madataire corps d'état secondaires
    Dumez / Girard - Gros oeuvre
    Somibat - Charpente couverture
    Alquier - Menuiseries extérieures / serrurerie

    Principaux matériaux et équipements 
    Béton brut, pierre semi épaisse, verre, volets aluminium thermo laquée
  • Calendrier Consultation 
    2014 
    Démarrage travaux
    2015
    Livraison
    2017
  • Surface 4 850m²
  • Coût 8,5 M€ HT