05

Restructuration et extension du collège Champfleury, Avignon

Voir les études
  • 01 -CHAMPF PLACE ST RUF
    L'établissement Champfleury à Avignon, occupe à l’extérieur des remparts une vaste parcelle arborée de vingt mille mètres carrés. 
    La restructuration et l’extension d’une partie des locaux d’enseignement doit permettre de définir une nouvelle séquence d’entrée, pour les élèves du collège et de l’école primaire. L’enjeu est également de poursuivre une rénovation amorcée, inscrire une plus grande lisibilité de l’institution dans la ville.
  • 02 -CHAMP-ENTREE
    En cœur d’îlot l’impression de sérénité domine. L’élancement démesuré des platanes, l’harmonie des façades du XIXe siècle, la couleur naturelle de l’enduit cimentier, et un large parterre fleuri de forme elliptique, donnent au lieu son caractère particulier. En rupture avec cet univers, une succession de bâtiments d’époque et d’écriture variée, occupe une frange de terrain entre le bâtiment principal et le boulevard. Ils définissent une séquence urbaine ordinaire, hétérogène et constitue aujourd’hui la part visible de l’établissement.
  • 03 -CHAMP-ETUDE_02
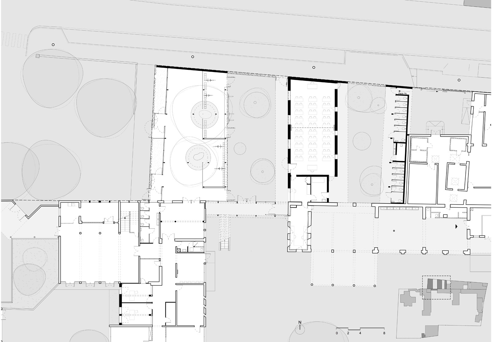
    Une phase d’échanges et de concertation conclut à l’abandon de l’entrée historique de l’établissement. Il est convenu de rassembler en un point l’accueil du collège et de l’école primaire autour d’un ensemble fonctionnel cohérent : la loge, une salle d’études, un préau, deux parvis et les locaux vélos associés.

    Cette ouverture installe une respiration nouvelle, une trame d’espaces libres végétalisés alterne avec une série de pavillons en rez-de-chaussée. Aux accès des différentes entités, les portes usinées dans des tôles d’acier de forte épaisseur, seront ajourées par découpe laser avec un motif répété de mandorles qui dévoile la croix trinitaire.

    Les murs pignons en pierre de taille, provenant des carrières de Vers, inscrivent ces pavillons dans l’histoire d’Avignon. La pierre du Midi, la « molasse » comme la nomment les tailleurs de pierre, fut utilisée pour les remparts de la ville.

    Une architecture simple, dialectale et contemporaine.
  • 08-PLAN SITUATION-CHAMPLEURY PROCHE A
  • 09-PLAN DE MASSE - PROJET - Copie
  • 10-RDC - PROJET - Copie
  • 03-COUPE
  • 04-DETS-3
  • 04-DETS

Restructuration et extension du collège Champfleury, Avignon

Voir les études
  • Programme Restructuration d’un bâtiment d’enseignement et extension d’une nouvelle séquence d’entrée et de locaux annexes du gymnase
  • Maître d’ouvrage Religieuses Trinitaires de Valence / OGEC établissement Champfleury                  Direction d’opération
    CCC Christian Lions Patacchini
  • Maître d’œuvre Architectes
    Lacube Architectes
    Équipe projet
    Lucie Marty, Mélanie Mondoloni Architectes
    Bureau d’études tous corps d’état  
    OTEIS                                                                                        
    Acousticien
    A2MS

    Entreprises
    Compagnon du Baroux - Gros oeuvre 
    Mandataire corps d'état secondaires
    Landragin - Charpente couverture
    Alquier - Menuiseries extérieures / serrurerie

    Principaux matériaux et équipements 
    Pierre de vers, structure et ensemble grilles en acier thermo laquée
  • Calendrier Consultation
    2017 
    Démarrage travaux
    2021
    Livraison
    2022
  • Surface 3 200 m²
  • Coût 3,8 M€ HT
  • Perspectives STEP01 Stéphane Gruneisen