03

Restructuration et extension École Sainte Trinité, Marseille

Voir les études
  • 1
    Rétablir une cohérence fonctionnelle, améliorer la qualité d’accueil, et initier un renouveau en s’appuyant sur les formidables potentialités du lieu : l’espace et la végétation. Le projet est l’opportunité de renforcer la lisibilité de l’institution dans la ville, repenser la répartition des espaces extérieurs et la gestion des flux principaux.
  • 2
    Le quartier de Mazargues est traversé par l’ancienne « route de Cassis » qui se prolonge vers les calanques. Constitué d'un maillage de zones résidentielles et d’espaces urbains plus denses, il se développe autour de la structure d’un noyau villageois. L’établissement scolaire a fait l’objet au fil des ans, de multiples greffes et modifications. Elles sont l’expression factuelle des réponses apportées à une évolution des besoins.
  • 3
    Le volume s’étire sur l’espace public, dans l’esprit et la typologie des grandes propriétés de Mazargues. L’expression d’un simple mur assume le caractère sanctuarisé d’un lieu d’enseignement mais invite au dialogue, par sa porosité, laisse apparaitre l’accueil au cœur de l’établissement. Un motif vernaculaire issu du vocabulaire de l’habitat pavillonnaire régional, élément de claustra en forme de fleur, inscrit le tracé de la croix trinitaire dans l’épaisseur des parois, apporte une douceur, une vibration supplémentaire à la simplicité des volumes.
  • 5.1
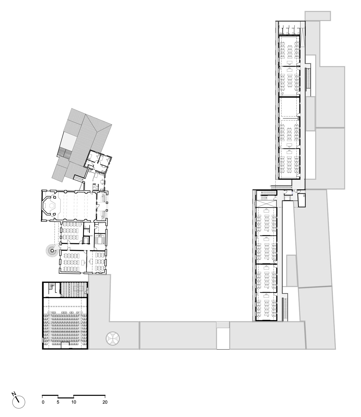
    La nature est placée au centre de cet ensemble. Le vaste îlot de fraicheur est préservé, une prairie bordée de platanes qui structure le site, lui confère un caractère recueilli. Il est prolongé par un parc accessible aux élèves qui épouse la pente naturelle vers la partie basse du site. Autour de cet espace paysager majeur, l’extension du lycée et l’école élémentaire s’implantent sur deux niveaux, complètent la forme d’un cloître ouvert et laissent émerger la silhouette caractéristique du bâtiment historique, le pignon de la chapelle.
  • 5
    Le bâtiment historique, ancien « Internat pour les jeunes filles pauvres de Mazargues » a fait l’objet d’une réhabilitation complète (renfort de planchers, ventilation mécanique contrôlée double flux, mise aux normes électrique et d’éclairement). Les façades ont été entièrement ravalées avec application d’un enduit à la chaux traditionnel de fabrication artisanale.
  • 4
    L’expression constructive est celle de dalles portées sur de simples refends. Entre ces lignes structurelles sont sertis des panneaux de façades ajourés en béton de fibre, ils forment une protection solaire aux larges ouvertures des salles d’enseignement. Un même motif, matricé dans les voiles de façades, à claire voie pour les panneaux, projette les courbes entrelacées de la croix trinitaire.
  • 6
  • 7
  • 8
  • 9
  • 10
  • 11
  • 12
  • 15
  • 16 - Copie
  • 17 - Copie
  • 18 - Copie
  • 04-COUPES
  • P06-DETAIL COURSIVES JARDIN

Restructuration et extension École Sainte Trinité, Marseille

Voir les études
  • Programme Restructuration lycée et communauté
    Extension séquence d'entrée, amphithéâtre, CDI, lycée et école primaire. Réaménagement des espaces extérieurs
  • Maître d’ouvrage Congrégation des Religieuses Trinitaires de Valence / OGEC Sainte Trinité
    AMO : Christian Lions Patacchini, CCC
  • Maître d’œuvre Architectes
    Lacube Architectes Mandataire, ILR Architecture
    Équipe projet : Coralie Geai, Lucie Marty
    Bureau d'études tous corps d'état : EGE, SSI, 2CS
    Acoustique : A2MS    
    Paysagiste : Marc Richier

    Entreprises
    Cari - Gros oeuvre / Mandataire corps d'état secondaires
    Alquier - Menuiseries extérieures
    Fauche - CFO / CFA
    Viriot Hautbout - CVC plomberie

    Principaux matériaux et équipements
    BFUHP, Méditerranée préfa, enduits à la chaux, lisbonis, luminaires, régent
  • Calendrier Consultation
    2015 
    Démarrage travaux
    2018 
    Livraison
    2020
  • Surface 4 000 m²
  • Coût 8 M€ HT
  • Crédits photos Florence Vesval